
Drewniany domek z poddaszem Ela jest uniwersalny i może spełniać podwójną funkcję: domku rekreacyjnego dla właściciela oraz obiektu wynajmowanego w ramach ośrodka wypoczynkowego. Rozkład pomieszczeń oraz najważniejszych elementów domku ułatwiają dowolną aranżację każdej przestrzeni, a wymiary części mieszkalnej pozwalają na budowę bez pozwolenia budowlanego. Wykonany z 44 mm bala doskonale dopasowane ściany sprawiają, że drewniany domek Ela jest niezwykle stabilną i wytrzymałą konstrukcją. Całkowita powierzchnia użytkowa domku - podłogi parteru + poddasza wynosi 31,4m2+27,4 m2. Powierzchnia dachu to 50,6 m2. Wymiar powierzchni mieszkalnej wynosi 471x676 cm. Domek w całości został wykonany z wysokiej jakości świerku, a dokładne dopasowanie jego elementów zapewniła cyfrowa obróbka drewna.
Dane techniczne
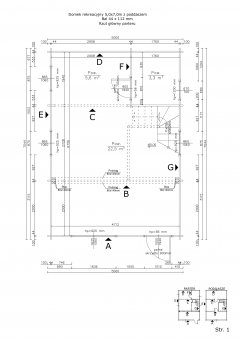
- rozmiar zewnętrzny 5x7,04 m
- rozmiar wewnętrzny 4,71x6,76 m
- grubość bala: 44 mm
- wysokość ściany bocznej 3,47 m
- wysokość w szczycie 4,82 m
- wysokość ściany kolankowej poddasza 1 m
- wysokość poddasza (od podłogi do belki dachowej) 2,24 m
- wysokość parteru (od podłogi do belki stropowej) 2,26 m
- powierzchnia dachu 50,6 m2
- deska dachowa 17 mm
- grubość deski podłogowej/stropowej 28 mm
- wypust dachu 0,4 m
- powierzchnia podłogi parteru + poddasza 31,4+27,4 m2
- 3 okna z szybą zespoloną uchylno/rozwierane w rozmiarze 1625x1060 mm
- 3 okna z szybą zespoloną uchylno/rozwierane w rozmiarze 860x1060 mm
- 1 okno na poddaszu z szybą zespoloną uchylno/rozwierane w rozmiarze 670x700 mm
- drzwi wejściowe 1000x1940 mm
- 3 x drzwi do pokoju 800x1940 mm
cena w wersji podstawowej: 48200 zł Promocja!
membrana: 880 zł
cena gontu: 2800 zł
cena okiennic: 3100 zł
rynny: 1650 zł
schody zabiegowe: w cenie domku
donice: 140 zł / szt.
Domek wykonujemy w wersji standardowej, bądź na specjalne życzenie Klienta.
Uwaga ważne!
NASZA FIRMA NIE ZAJMUJE SIĘ MONTAŻEM DOMKU, JEŚLI NIE MOŻESZ ZMONTOWAĆ GO SAM, MOŻESZ ZWRÓCIĆ SIĘ Z ZAPYTANIEM O MONTAŻ DO FIRMY:
GRZEGORZ WĄSIK tel. 887-597-124
e-mail: grzegorzwasik22@gmail.com
Na życzenie klienta firma wykonuje kompleksowe usługi typu: podbudowa pod domek oraz instalacje wodno-kanalizacyjną i elektryczną.
lub
ROMAN HAŁKA tel. 721-135-453
e-mail: roman.halka@gmail.com
Na życzenie klienta firma wykonuje kompleksowe usługi dekarskie: krycia blachą, blachodachówką.
Galeria zdjęć
Gotowy do złożenia zamówienia? Wypełnij formularz poniżej. Jeśli masz pytania, chętnie na nie odpowiemy! Możesz napisać do nas na adres biuro@altany.info.pl lub zadzwonić.
Po złożeniu zamówienia przez poniższy formularz proszę czekać na e-mail potwierdzający przyjęcie zamówienia. Prosimy o nie składanie zamówienia ponownie poprzez e-mail.
UWAGA!
Kupujący jest zobowiązany do udostępnienia podjazdu na miejsce dostawy.
Rozładunek odbywa się środkami i na koszt kupującego. Mogą to być: wózek widłowy, ładowarka, dźwig lub co najmniej 2 osoby, które ręcznie rozbiorą paczkę i rozładują pojedynczo elementy domku.
FORMULARZ ZAMÓWIENIA - WYBIERZ WARIANT














































































































