Domek Letniskowy z Bali "OLGA" z Przestronnym Tarasem (5x7 m)

Twój prywatny kurort w ogrodzie – solidność świerkowego bala i komfort dużej przestrzeni.
Marzysz o miejscu, gdzie poranna kawa smakuje lepiej, a wieczorny relaks trwa dłużej? Poznaj domek Olga – konstrukcję stworzoną dla miłośników przestrzeni i natury.
Wszechstronność i Potencjał:
Domek Olga to nie tylko letnia altana. Dzięki solidnej konstrukcji i przestronnemu wnętrzu może pełnić funkcję: domku na wynajem, komfortowego domku dla gości, cichego biura na czas pracy zdalnej lub idealnego domku rekreacyjnego na działce. To inwestycja, która elastycznie dopasowuje się do Twoich potrzeb.
To pełnoprawny salon na świeżym powietrzu. Dzięki imponującemu, zadaszonemu tarasowi o głębokości aż 3 metrów, żadna pogoda nie pokrzyżuje Twoich planów na letnie przyjęcie czy rodzinne spotkanie – przygotowane potrawy z grilla możesz wygodnie zjeść pod dachem, ciesząc się świeżym powietrzem.
Podłoże musi być wyrównane, może być wylewka lub rozstawione bloczki 61 szt.
Główne Atuty Modelu OLGA:
- Bezkompromisowa Jakość: Ściany wykonane z litego bala świerkowego o grubości 44 mm to gwarancja stabilności.
- Ogromny Taras: Aż 14,1 m² zadaszonej przestrzeni to idealne miejsce wypoczynkowe.
- Jasne Wnętrze: Duże okna i szerokie drzwi zapewniają mnóstwo naturalnego światła.
- Solidna Podłoga: W standardzie gruba podłoga (28 mm) gwarantująca trwałość.
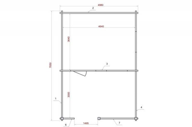
Dane Techniczne – Specyfikacja Domku
(Pełna specyfikacja: przesuń w prawo ➡️)
| Parametr | Wymiar | Szczegóły |
|---|---|---|
| Rozmiar zewnętrzny domku | 5,0x7,05 m | Wymiar po obrysie ścian |
| Rozmiar wewnętrzny domku | 4,71x3,71 m | |
| Taras | 4,71x3,0 m | |
| Grubość bala | 44 mm | Lity bal świerkowy |
| Wysokość ściany | 2,24 m | |
| Wysokość ściany w szczycie | 2,86 m | |
| Powierzchnia dachu | 40,4 m² | Nachylenie: 12 stopni |
| Grubość deski dachowej | 19 mm | |
| Grubość deski podłogowej | 28 mm | |
| Wypust dachu | 3,26 m | Głęboka osłona frontu |
| Powierzchnia podłogi + tarasu | 17,5 m² + 14,1 m² = 31,6 m² | |
| Drzwi | 1 x 160/194 cm | Przeszklone, dwuskrzydłowe |
| Okna (wymiar ościeżnicy) | 2x162,5/106 cm (rozwierano/uchylne) | |
| Legary | 80x80 mm | |
| Kąt dachu | 15° |
Cennik i Konfiguracja (Elementy Opcjonalne)
Skonfiguruj swój domek według potrzeb. Podana cena dotyczy wersji podstawowej.
Baza:
Domek letniskowy OLGA (konstrukcja + podłoga): 19 400 zł – PROMOCJA!
Dach i Orynnowanie:
- Gont bitumiczny: 2 300 zł
(estetyczne i trwałe pokrycie; dostępne kolory: bordo, brąz, czarny, grafit, zielony) - Membrana dachowa: 700 zł
- System rynnowy: 1 200 zł
Dodatki Estetyczne:
- Okiennice: 1 700 zł (komplet zabezpieczający okna)
- Donice drewniane: 140 zł / szt.
🛠️ Logistyka i Usługi Dodatkowe (Ważne)
Wymiary paczki: 600x115x95 cm | Waga: 2100kg
Dostawa i Rozładunek: Kupujący jest zobowiązany do udostępnienia podjazdu. Rozładunek odbywa się środkami i na koszt kupującego. Wymagany jest: wózek widłowy, ładowarka, dźwig, lub co najmniej 2 osoby do ręcznego rozładowania.
UWAGA: Nasza firma nie zajmuje się montażem domku. Model jest przeznaczony do montażu we własnym zakresie. Możesz skontaktować się z niezależnymi wykonawcami:
(Kontakty: przesuń w prawo ➡️)
| Wykonawca | Kontakt | Zakres Usług (Na Życzenie) |
|---|---|---|
| GRZEGORZ WĄSIK | Tel: 887-597-124 E-mail: grzegorzwasik22@gmail.com | Kompleksowa podbudowa, montaż oraz instalacje wod-kan i elektryczne. |
| ROMAN HAŁKA | Tel: 721-135-453 E-mail: roman.halka@gmail.com | Kompleksowe usługi dekarskie: krycia blachą, blachodachówką. |
Zmień swój ogród w strefę komfortu już dziś. Zamów domek Olga!
Masz pytania? Napisz: biuro@altany.info.pl lub zadzwoń: +48 606 767 965
Wybierz interesujące Cię opcje. Jeśli masz dodatkowe pytania, dopisz je w polu "Uwagi" na końcu formularza. Po wysłaniu otrzymasz e-mail z podsumowaniem i potwierdzeniem przyjęcia zamówienia.
Ważne: Wysłanie tego formularza jest wystarczające. Prosimy o nieprzesyłanie zamówienia ponownie drogą e-mail lub telefonicznie – dzięki temu szybciej je przetworzymy.
Kupujący jest zobowiązany do udostępnienia podjazdu na miejsce dostawy. Rozładunek odbywa się środkami i na koszt kupującego. Mogą to być: wózek widłowy, ładowarka, dźwig lub co najmniej 2 osoby, które ręcznie rozbiorą paczkę i rozładują pojedynczo elementy domku.
Formularz zamówienia
Masz pytania przed zakupem?
Zadzwoń lub napisz – doradzimy w każdym detalu!











































































































